Imagine 41

PRIVIGHETORILOR (Padurea Baneasa)-Imobil 2010, 2 bai, terasa 7 mp, paza, liniste

ID: P217762 Bucuresti, Baneasa 65
139.000€ + TVA 145.000€ + TVA
Camere
2
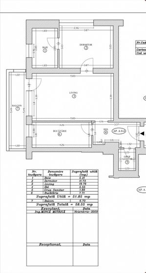
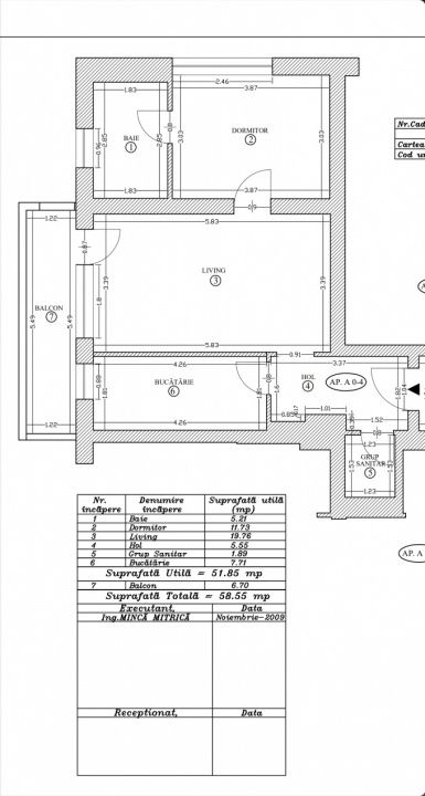
Suprafata utila
52 mp
Etaj
Parter
Bai
2
An constructie
2010
Descriere
Pentru mai multe oferte vizitati www.educareproperties.ro!
EDUCARE.Properties va prezinta un apartament semi-mobilat, situat la 5 minute de Gradina Zoologica Baneasa, Baneasa Shoping City, Ikea, Jollie Ville, Ambasada SUA, American International School of Bucharest, British School of Bucharest, Liceul Francez ,,Anna de Noailles", Gradinita Disneyland, Gradinita Mark Twain; Gradinita Tinker Bell; Gradinita/Scoala Little London, British School, Scoala Primara si Gimnaziala Avenor College etc.
✨️retragerea fata de traficul stradal si orientarea catre VEST confera liniste si relaxare prin zona verde din imediata vecinatate,
✨️terasa de 7 mp este spatiul ideal pentru a savura o cafea matinala,
✨️bucataria deschisa se poate inchide pentru pasionatii de gastronomie,
✨️2 bai dintre care 1 baie ampla si cu fereastra afara,
✨️pretul afisat include mobilierul din poze exceptie terasa ce este doar o sugestie de amenajare,
✨️se poate achizitiona parcare supraterana (12.000 EUR+TVA/loc) sau subterana (15.000 EUR+TVA/loc).
✨️ansamblul dispune de paza 24/24 si posibilitatea debransarii de la centrala de bloc si sa se monteze centrala individuala de apartament,
Proprietar: persoana juridica.
Pret de vanzare 145.000 EUR+TVA, inclusiv cu credit bancar.
DISPONIBIL IMEDIAT.
Caracteristici
  • ID:P217762
  • Nr. camere:2
  • Nr. dormitoare:1
  • S. utila:52.00 mp
  • S. balcoane:7.00 mp
  • S. utila totala:59.00 mp
  • S. construita:81.00 mp
  • Comp.:Semidecomandat
  • Confort:1
  • Etaj:Parter
  • Nr. bucatarii:1
  • Nr. bai:2
  • An constructie:2010
  • Structura:Beton
  • Tip imobil:Bloc
  • Regim inaltime:P+7
  • Orientare:Vest
Video
Specificatii
Curent
Apa
Canalizare
Gaz
CATV
Acces internet
Fibra optica
Centrala imobil
Calorifere
Aer conditionat
Bloc izolat termic
Vopsea lavabila
Faianta
Vinarom
Parchet
Gresie
Ferestre PVC
Ferestre Termopan
Usa intrare Metal
Usa interior Celulare
Terasa
Wc serviciu
Bucatarie Mobilata
Bucatarie Utilata
Apometre
Contor caldura
Contor gaz
Partial mobilat
Videointerfon
Lift
Curte comuna
Localizare
Doina TOPUZARU
Consultant imobiliar
Esti interesat de aceasta proprietate ?
Proprietati similare
TOP Imagine 3341
PRIVIGHETORILOR (ZOO)-2 camere, 2 bai, balcon cu vedere deschisa, parcare, LIBER
Bucuresti, Baneasa 139.000€ + TVA
2 camere 2 bai 55mp
Imagine 30
IANCU NICOLAE (ZOO)- FINALIZAT, vecin cu padurea, 80 mp!
Bucuresti, Baneasa 139.000€ + TVA
2 camere 2 bai 55mp