Imagine 41

JANDARMERIEI (Baneasa Shopping City)- 4 camere cu curte privata de 139 mp!

ID: P225840 Bucuresti, Baneasa 3
375.000€
Camere
4
Suprafata utila
127 mp
Etaj
Parter
Bai
2
Parcari
12
An constructie
2018
Descriere
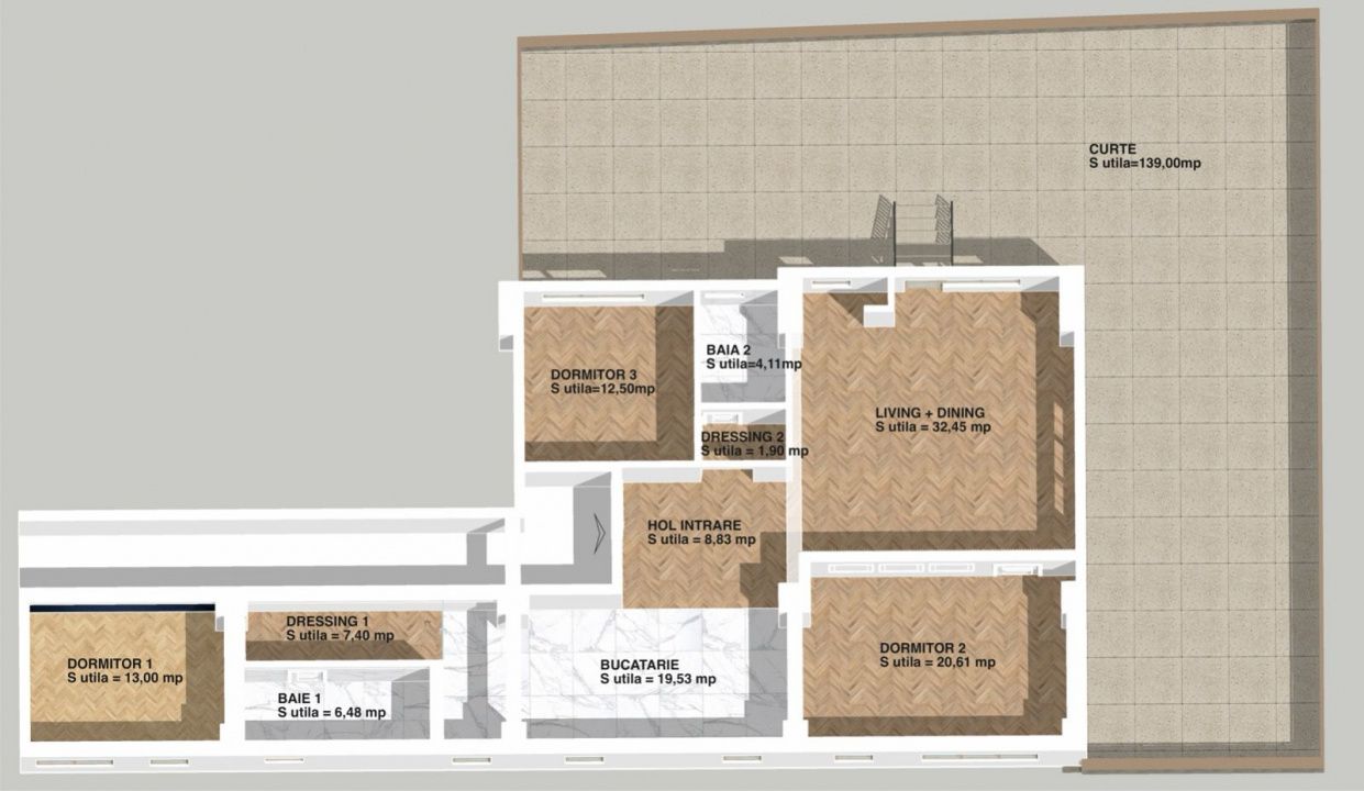
EDUCARE.Properties va prezinta un apartament unicat pozitionat intr-un imobil tip boutique (S+P+4 etaje) edificat in anul 2018, cu o locatie restrasa si linistita fata de traficul bulevardului principal.
Un parter inalt, printr-o modificare a compartimentarii din 2 ap de 2 camere intr-un ap de 4 camere cu o orientare EST-SUD-VEST fiind inconjurat de verdeta si retras fata de zgomotul traficului principal.
Prin accesul asigurat din camera de zi, se poate accesa curtea interioara de 139 mp in proprietate exclusiva ce dispune si de acces pietonal dinspre strada principala. Iar prin intrarea catre imobil este in curs de montare o bariera cu telecomanda accesibila doar riveranilor, pentru intimitate si exclusivism.
Pentru persoanele interesate se poate achizitiona suplimentar (15.000 EUR/loc) 1-2 locuri de parcare subteran, extrem de inalt, ce permite transformarea in 2 locuri cu sistem Klaus.
Avantaje cumparator:
✨️spatiul interior cu multa lumina, orientare catre est;
✨️doar bucataria este inclusa in pret;
✨️spatii de depozitare gandite in nise pentru a se asigura suficient loc absolut necesar intr-o locuinta, inclusiv in debaraua unde este racordata masina de spalat rufe, peste care se poate monta si un uscator;
✨️distanta fata de vecinatati deja construite cu scop residential ( vecinul imediat o vila cu o curte ampla);
✨️ 500 metri pana la viitoarea statie de metrou Washington;
✨️200 metri pana la Padurea Baneasa (4-5 grade in minus in zilele caniculare);
Se accepta si achizitia cu credit bancar.
DISPONIBILITATE IMEDIATA.
Caracteristici
  • ID:P225840
  • Nr. camere:4
  • Nr. dormitoare:3
  • S. utila:127.00 mp
  • S. construita:154.00 mp
  • Comp.:Semidecomandat
  • Confort:1
  • Etaj:Parter
  • Nr. bucatarii:1
  • Nr. bai:2
  • Nr. parcari:12
  • Pret garaj:15.000€
  • An constructie:2018
  • Structura:Beton
  • Tip imobil:Bloc
  • Regim inaltime:P+4
  • Orientare:Mixta
  • Clasa energetica:A
Specificatii
Curent
Apa
Canalizare
Gaz
CATV
Acces internet
Fibra optica
Centrala proprie
Calorifere
Aer conditionat
Bloc izolat termic
Vopsea lavabila
Faianta
Vinarom
Parchet
Gresie
Ferestre PVC
Ferestre Termopan
Usa intrare Metal
Usa interior Celulare
Terasa
Wc serviciu
Debara
Dressing
Bucatarie Mobilata
Bucatarie Utilata
Apometre
Contor gaz
Partial mobilat
Videointerfon
Lift
Localizare
Doina TOPUZARU
Consultant imobiliar
Esti interesat de aceasta proprietate ?
Proprietati similare
TOP Imagine 4011
Baneasa Shopping City (THE IVY)-4 camere luminoase, mobilier premium, 2 parcari!
Bucuresti, Baneasa 390.000€ + TVA
4 camere 2 bai 113mp
TOP Imagine 3381
PIATA ROMANA - Imobil 2025, 3 camere, 3 grupuri sanitare, terasa compacta 10 mp!
Bucuresti, Romana 375.000€ + TVA
3 camere 3 bai 83mp
Imagine 3915
JANDARMERIEI (THE IVY)-4 camere orientare SUD, bloc 2023, mobilat, 2 parcari!
Bucuresti, Baneasa 395.000€ + TVA
4 camere 2 bai 101mp
Imagine 3299
PIATA ROMANA-2 camere 81 mp utili totali, 2 bai, terasa 11 mp, 2 boxe, garaj!
Bucuresti, P-ta Romana 364.900€ 369.900€
2 camere 1 baie 71mp
Imagine 3201
Baneasa Shopping City (THE IVY)-PRIMA LOCUIRE I facilitati I 1 loc parcare garaj
Bucuresti, Baneasa 325.000€ 330.000€
3 camere 2 bai 73mp
Imagine 1780
IANCU NICOLAE-3 camere cu gradina privata de 100 mp, mobiler modern, garaj!
Bucuresti, Iancu Nicolae 330.000€
3 camere 2 bai 78mp