Imagine 41

IANCU NICOLAE (ZOO)- 4 camere mobilate, vecin cu padurea, 138mp utili, parcare!

Aceasta proprietate a fost deja vanduta! Pentru oferte similare contactati agentul
ID: P184778 Bucuresti, Iancu Nicolae 9
299.000€ + TVA
Camere
4
Suprafata utila
138 mp
Etaj
Etaj 2
Bai
3
An constructie
2010
Descriere
EDUCARE va prezinta un apartament mobilat situat la 5 minute de Gradina Zoologica Baneasa, Baneasa Shoping City, Ikea, Jollie Ville, Ambasada SUA, American International School of Bucharest, British School of Bucharest, Liceul Francez ,,Anna de Noailles", Gradinita Disneyland, Gradinita Mark Twain; Gradinita Tinker Bell; Gradinita/Scoala Little London, British School, Scoala Primara si Gimnaziala Avenor College etc.
Ansamblul dispune de parcari supraterane si subterane, centrala a blocului proprie si paza 24/24.
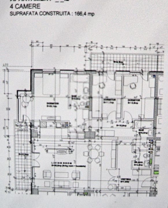
Apartamentul este compartimentat astfel: hol intrare (8 mp), living, cu dinning si bucatarie open space (47 mp), 1 grup sanitar serviciu (5 mp), 1 dormitor matrimonial (22 mp) cu baie (6 mp), 2 dormitoare (12/13 mp), 1 baie secundara (5 mp) si 2 terase cu acces din fiecare camera (10 si 9 mp) fiind complet mobilat si utilat.
Proprietar: persoana juridica.
Pret de vanzare: 299.000 EUR+TVA, se accepta si credit bancar.
Suplimentar se pot achizitiona si 1- 2 locuri de parcare subterane/supraterane (15.000 EUR+TVA/12.000 EUR+TVA).
DISPONIBIL IMEDIAT.
Caracteristici
  • ID:P184778
  • Nr. camere:4
  • Nr. dormitoare:3
  • S. utila:138.00 mp
  • S. balcoane:19.00 mp
  • S. construita:166.00 mp
  • Comp.:Decomandat
  • Confort:1
  • Etaj:Etaj 2
  • Nr. bucatarii:1
  • Nr. bai:3
  • Nr. balcoane:3
  • An constructie:2010
  • Structura:Beton
  • Tip imobil:Bloc
  • Regim inaltime:P+7
Specificatii
Curent
Apa
Canalizare
Gaz
CATV
Acces internet
Fibra optica
Centrala proprie
Calorifere
Aer conditionat
Bloc izolat termic
Vopsea lavabila
Faianta
Vinarom
Parchet
Gresie
Ferestre PVC
Ferestre Termopan
Usa intrare Metal
Usa interior Celulare
Wc serviciu
Dressing
Bucatarie Mobilata
Bucatarie Utilata
Apometre
Contor gaz
Complet mobilat
Videointerfon
Lift
Curte comuna
Localizare
Doina TOPUZARU
Consultant imobiliar
Esti interesat de aceasta proprietate ?
Proprietati similare
TOP Imagine 4084
PROMENADA (Win Herastrau)-Langa parc, complex premium, facilitati, parcare garaj
Bucuresti, Herastrau 265.000€
2 camere 1 baie 58mp
TOP Imagine 3631
Calea VICTORIEI (ASE Cladirea MOXA)-Imobil BOUTIQUE, apartament luxury, LIBER!
Bucuresti, P-ta Romana 260.000€ + TVA
2 camere 1 baie 60mp
Imagine 3201
Baneasa Shopping City (THE IVY)-PRIMA LOCUIRE I facilitati I 1 loc parcare garaj
Bucuresti, Baneasa 325.000€ 330.000€
3 camere 2 bai 73mp
Imagine 2589
Băneasa Shopping City-Locație retrasa, multa verdeață, finisaje deosebite!
Bucuresti, Baneasa 261.000€ + TVA
2 camere 1 baie 75mp
Imagine 1780
IANCU NICOLAE-3 camere cu gradina privata de 100 mp, mobiler modern, garaj!
Bucuresti, Iancu Nicolae 330.000€
3 camere 2 bai 78mp
Imagine 1674
IANCU NICOLAE (ZOO)-3 camere spatioase, piscina, sauna, boxa, parcare, LIBER!
Bucuresti, Baneasa 339.000€
3 camere 3 bai 97mp