Imagine 41

PIATA ROMANA - Imobil BOUTIQUE 2025, 2 camere generoase, terasa insorita 20 mp!

ID: P127748 Bucuresti, Romana 18
475.000€ + TVA
Camere
2
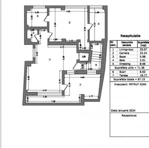
Suprafata utila
71 mp
Etaj
Etaj 4
Bai
2
An constructie
2025
Descriere
Zona ultracentrala a capitalei prezinta numeroase restrictii constructive pentru noile imobile, fiind si o zona protejata cu limitari urbanistice care modifica foarte mult arhitectura exterioara si compartimentarea interioara.
Imobilul BOUTIQUE prezentat in continuare a fost edificat in anul 2025 si este alcatuit in total din 5 apartamente cu o distributie exclusivista (1 apartament/etaj) si dispune de locuri de parcare exterioare, in garajul subteran si spatii de depozitare (boxe).
EDUCARE va prezinta un apartament amplasat la etajul 4, cu o suprafata utila de 71 mp la care se adauga o TERASA de 20 mp pe nivelul 4 + cca 80 mp deasupra pe terasa blocului, cu o deschidere ampla fata de vecinatati avand in vedere pozitia in zona ultracentrala. De asemenea, retragerea fata de bulevardele circulate confera liniste si intimitate pentru buna convietuire pe termen lung.
La acest moment apartamentele sunt finisate conform imaginilor prezentate, si ca dotari: jaluzele exterioare cu actionare prin telecomanda, tamplarie de aluminiu Reynaers, centrala termica de apartament Vaillant, aer conditionat.
PRETUL DE VANZARE al apartamentului impreuna cu terasa de deasupra in proprietate exclusiva cu scara de acces din apartament este de 475.000 EUR+TVA.
Suplimentar se pot achizitiona:
-LOCURI DE PARCARE: subterane la 30.000 ER+TVA sau 35.000 EUR+TVA, supraterane la 20.000 EUR+TVA;
-BOXE (spatii de depozitare in subsolul imobilului) de 2-6 mp la pretul de min. 1.800 EUR/mp;
SE ACCEPTA SI ACHIZITIA PRIN CREDIT BANCAR!


Caracteristici
  • ID:P127748
  • Nr. camere:2
  • Nr. dormitoare:1
  • S. utila:71.00 mp
  • S. balcoane:20.00 mp
  • S. terase:80.00 mp
  • S. utila totala:171.00 mp
  • S. construita:199.00 mp
  • Comp.:Decomandat
  • Confort:1
  • Etaj:Etaj 4
  • Nr. bucatarii:1
  • Nr. bai:2
  • An constructie:2025
  • Structura:Beton
  • Tip imobil:Bloc
  • Regim inaltime:P+4
  • Orientare:Sud
  • Clasa energetica:A
Specificatii
Curent
Apa
Canalizare
Gaz
Fibra optica
Centrala proprie
Incalzire pardoseala
Aer conditionat
Bloc izolat termic
Vopsea lavabila
Faianta
Vinarom
Parchet
Gresie
Ferestre Aluminiu
Ferestre Termopan
Rulouri Aluminiu
Usa intrare Metal
Usa interior Celulare
Terasa
Wc serviciu
Boxa la subsol
Debara
Dressing
Bucatarie Nemobilata
Bucatarie Neutilata
Apometre
Contor gaz
Nemobilat
Videointerfon
Lift
Localizare
Doina TOPUZARU
Consultant imobiliar
Esti interesat de aceasta proprietate ?
Proprietati similare
TOP Imagine 3108
SISESTI-Priveliste unica la LAC I 4 camere I mobilier luxury I 2 parcari
Bucuresti, Sisesti 499.000€ 520.000€
4 camere 3 bai 118mp
TOP Imagine 2518
CENTRAL (FOISOR)-5 camere ample, curte privata 210 mp, imobil 2020, 2 parcari!
Bucuresti, Foisorul de Foc 490.000€ 520.000€
5 camere 3 bai 110mp
Imagine 1884
Baneasa Shopping City - Imobil exclusivist tip BOUTIQUE cu finisaje PREMIUM!
Bucuresti, Baneasa 430.000€
3 camere 2 bai 100mp